Sobre o imóvel
Informações do corretor associado
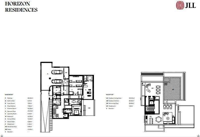
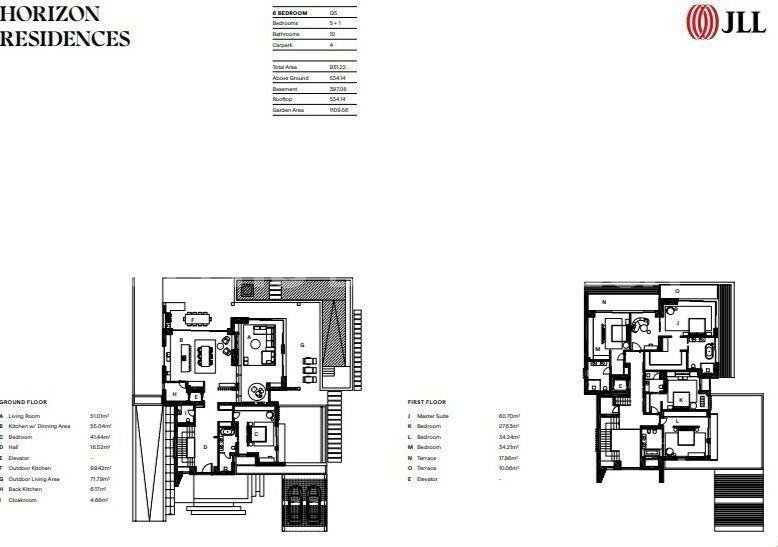
Moradia T6, novo, com 931 m2 de área bruta privativa, 2 lugares de estacionamento, jardim, varandas e terraço com piscina privativa, no One Green Way, na Quinta do Lago. O Empreendimento One Green Way é um novo projeto localizado na Quinta do Lago, que oferece privacidade e exclusividade dignas de um resort. Com vistas fenomenais sobre o campo de golfe norte, este condomínio privado conta com 89 residências contemporâneas, sendo 27 moradias e 62 apartamentos, divididos em três tipos diferentes: Horizon Residences (T4 a T6), Panorama Residences (T3 e T4) e Garden Residences (T3 e T4).
!Estas informações refletem a opinião do corretor associado e não necessariamente da Coelho da Fonseca, que não se responsabiliza por eventuais divergências ou prejuízos decorrentes do uso dessas informações.

Mantenha sua liquidez e amplie suas possibilidades.
A Coelho é correspondente bancária do Itaú, o maior banco da América Latina, com taxas exclusivas para seus clientes.
Galeria Completa





O Empreendimento
Conheça o condomínio exclusivo que abriga este imóvel excepcional. Infraestrutura completa e localização privilegiada.









